光伏用美式变电站产品简介
      ZGS-G系列光伏专用美式箱变是一种将高压熔断器、多工位负荷开关、无励磁调压分接开关都作为变压器的内部部件,安装在变压器油箱内部,在变压器外部加装低压成套设备的组合式变压器。它用于光伏发电系统中,将逆变器岀来的低电压(0.69kV或0.27kV或0.315kV)升高到电网系统的电压(10kV或35kV)以供并网使用,其变压器一般采用双分裂或双绕组的油浸式变压器,高压开关采用油浸式开关。
光伏用美式变电站产品型号说明
光伏用美式变电站产品使用环境


光伏用美式变电站产品特点
1、设计标准均符合GB/T10217-2013、GB/T6451的要求;
2、所有带电部位都在箱内,无裸露带电部分。全密封、全绝缘结构,无需绝缘距离,可靠保护人身安全。由于高压侧的带电体全部被密封到油箱内,没有裸露到外部的带电体,因此安全性能可靠,能有效防止小动物的入侵;
3、美式变电站可接入环网供电系统中,与柜式环网箱或电缆分支箱组成环网供电系统,也可配制成终端型;
4、体积小、占地面积小。其散热方式为散热片,也可加装风机,其运行噪音小。在同一电压等级和容量的配电系统中,我公司的美变体积仅有欧变的三分之一;
5、结构紧凑、价格低廉。美变的成套设备全都被紧凑的放置到变压器的箱体内或箱体上,没有额外的辅助设备。高压侧采用插入式熔断器作为保护,方便检修、操作和维护。低压侧断路器均采用固定式安装,连接安全可靠,稳定性强;
6、油浸式变压器过载能力更强,局部放电量小、绝缘水平高、噪声小、产品使用寿命长;
7、美变内部设有控制(辅助)变压器室,可将逆变器出来的电压转换成市电(单相220V,三相380V),以供辅助设备的供电和其他照明设备的使用,保证其箱式变电站的可靠运行;
8、低压侧采用光伏专用浪涌保护器,专门针对逆变器的谐波、过电压以及干扰等问题进行专业的保护;
9、美式箱变可根据用户需要配备智能综合测控装置(综保或继电保护),以便用户进行远程监控和操作。
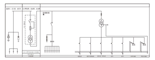
光伏用美式变电站产品典型一次系统方案

光伏用美式变电站产品外形布局
